Opis nieruchomości
OFERTA DOSTĘPNA WYŁĄCZNIE W NASZYM BIURZE !NA SPRZEDAŻ NIERUCHOMOŚĆ Z DUŻYM POTENCJAŁEM PRZY UL. CHŁODNEJ 8 W TCZEWIE W BARDZO ATRAKCYJNEJ LOKALIZACJI MIASTA.
Przedstawiam Państwu ofertę sprzedaży DUŻEJ DZIAŁKI O POW. 1286m2 zabudowanej budynkiem mieszkalnym wolnostojącym o pow. użytkowej 78,95m2 W SAMYM CENTRUM MIASTA BLISKO DWORCA PKP w bezpośrednim sąsiedztwie głównej ulicy Gdańskiej i SĄDU REJONOWEGO W TCZEWIE.
LOKALIZACJA I DUŻA POWIERZCHNIA DZIAŁKI JEST TUTAJ KLUCZOWA I STANOWI GŁÓWNY ATUT NIERUCHOMOŚCI.
Na terenie działki znajduje się również murowany budynek gospodarczy, w którym mieści się duży garaż o wymiarach (szerokość 5,55m x długość 6,45m) oraz dodatkowe pomieszczenia gospodarcze.
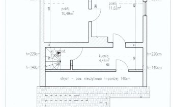
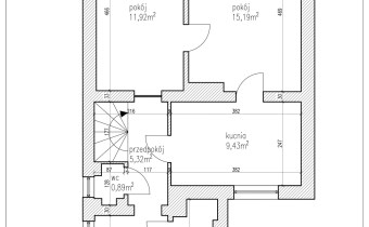
Budynek mieszkalny obejmuje łącznie (na parterze i poddaszu): cztery pokoje, dwie kuchnie, łazienkę, osobną toaletę, przedpokój, wiatrołap i klatkę schodową. Budynek w części podpiwniczony ( piwnica i kotłownia z piecem na pellet ).
Nieruchomość zlokalizowana jest w samym centrum miasta w bezpośrednim otoczeniu zabudowy mieszkalnictwa jednorodzinnego i wielorodzinnego. W obrębie dzielnicy występują wszelkie usługi bytowe tj.: szkoły, pasaże handlowe, sklepy, apteki, kancelarie notarialne, dworzec PKP, Galeria Kociewska i przystanki bezpłatnej komunikacji miejskiej.
Zgodnie z MPZP przedmiotowa działka nr 271 (obręb 6) usytuowana jest w obrębie jednostki urbanistycznej oznaczonej symbolem US4 "Śródmieście Bis", należącej do strefy śródmiejskiej, której
przeznaczenie podstawowe obejmuje wyznaczone na rysunku planu usługi publiczne centrotwórcze.
Przeznaczenie uzupełniające jednostki US4 obejmuje, dominującą w planie zabudowę mieszkaniową wielorodzinną wolnostojącą, zabudowę jednorodzinną wolnostojącą mieszkaniowo-usługową objętą strefą ochrony konserwatorskiej, zabudowę usługową z dużym udziałem zieleni.
Działka położona jest w strefie ochrony konserwatorskiej oznaczonej w planie symbolem XII.
Zgodnie z Uchwała Rady Miejskiej w Tczewie przedmiotowa działka nie jest położona w obszarze zdegradowanym i nie jest objęta obszarem rewitalizacji (w uchwale nie ustanowiono prawa pierwokupu w obszarze rewitalizacji).
Nieruchomość uzbrojona we wszystkie media: prąd, gaz, woda, kanalizacja.
Nasi brokerzy kredytowi pomagają bezpłatnie kupującym w uzyskaniu kredytu hipotecznego na zakup przedmiotowej nieruchomości, profesjonalnie i bezpiecznie.
Oferta na wyłączność.
Kupujący nie płaci prowizji.
Zapraszam na prezentację tej nieruchomości. Ofertę polecam!
Nota prawna
Opis oferty zawarty na stronie internetowej sporządzany jest na podstawie oględzin nieruchomości oraz informacji uzyskanych od właściciela, może podlegać aktualizacji i nie stanowi oferty określonej w art. 66 i następnych K.C.Szczegóły



